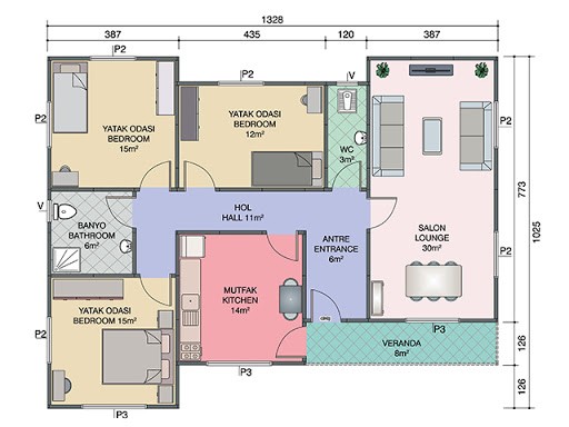
121 m2 Tek Katlı Prefabrik Ev

121 m2 Tek Katlı Prefabrik Ev

Bina Yüksekliği

250 cm

Dış Duvarlar

10 cm

İç Duvar

6 cm - 10 cm (Opsiyonel )

Dış Kapı

Çelik Kapı

İç Kapı

Amerikan Kapı

Balkon Kapısı

Beyaz Renk PVC Kapı

Pencereler

Beyaz Renk PVC Pencere

Çatı Kaplaması

Boyalı Galveniz Sac, Metal Kiremit(Opsiyonel), Shingle (Opsiyonel )

Elektrik Tesisatı

Sıva Altı

Sıhhi Tesisat

Sıva Altı

Dış Cephe Boyası

Silikonlu Dış Cephe Boyası

İç Cephe Boyası

Plastik İç Cephe Boyası

Konut malzemelerinin indirilmesi ve montajı
Prefabrik bina elemanları (duvar panelleri ve çelik birleşim elemanları)
Prefabrik bina tavan kaplaması, tavan yalıtımı ve çatı kaplamnın yapılması
Konut dış ve iç kapıları ve montajı
Konut pencereleri ve montajı (çift cam PCV)
Sıva altı elektrik ve su tesisatının çekilmesi
Elektrik armatürlerinin montajı
Konut dış ve iç boya işlerinin uygulanması
Duş teknesi, klozet, lavabo ve bataryaların paket halinde müşteriye verilmesi